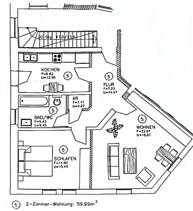
Diese gepflegte Eigentumswohnung in einem denkmalgeschützten Altbau aus dem Jahr 1903 bietet auf einer Wohnfläche von 60 m² ein durchdachtes Raumkonzept: Zwei helle Zimmer, ein Badezimmer mit Fenster und Badewanne sowie ein Abstellraum und Küche.
Der Wohnbereich überzeugt durch helles Laminat, während das Badezimmer und die Küche mit Fliesen ausgestattet sind. Die Zentralheizung aus dem Jahr 2005 wird mit Gas betrieben. Zusätzliche 10m² Nutzfläche im Kellerabteil und ein Abstellraum sorgen für praktischen Stauraum.
Das gesamte Haus wurde 2004 saniert und ist in einem gepflegten Zustand. Die sehr gut geschnittene Wohnung eignet sich optimal für Singles und Paare aber auch für Kapitalanleger und Kurzzeitvermietung.











